Firma produkuje schody żelbetowe wg indywidualnego projektu zamawiającego lub projektu zaproponowanego przez naszego pracownika. Wykonujemy schody proste, kręcone oraz o podwyższonym standardzie powierzchni betonowych (nadające się do wbudowania bez wykończenia).
Dokonujemy również przeprojektowania elementów klatki schodowej z monolitycznych na prefabrykowane.

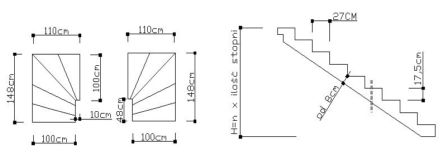
TYPOWE UKŁADY SCHODÓW ZABIEGOWYCH
TYPOWY MODUŁ ZABIEGOWY TYPOWY MODUŁ PROSTY
Folder reklamowy. Plik do pobrania:
w formacie PDF (1724 KB)
|